
赞成林风在规划设计中充分强调并体现了“均好性、协调性、多样性、时代性、独特性”基本概念, 在平面上从全局出发,利用点板结合的高层住宅,形成一条流畅的自由曲线,将三块分散的用地极其自然组织起来,形成一个完整的小区。
地址:上城望江东路钱江路交叉口

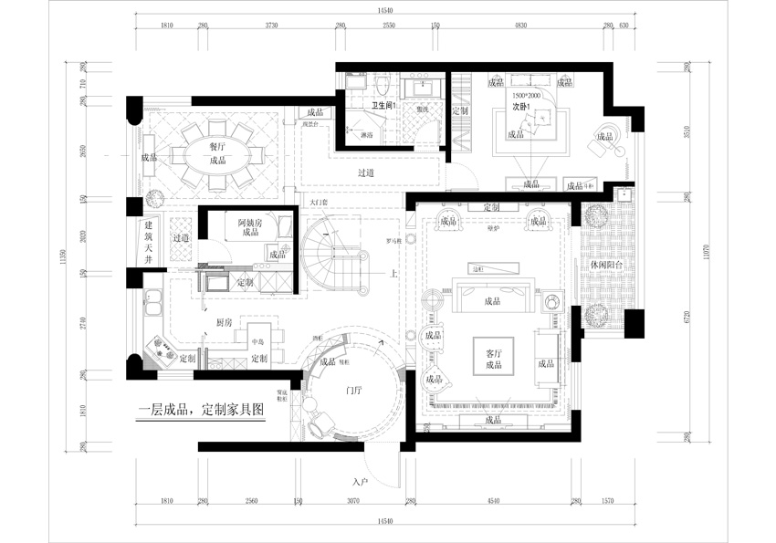
一层平面图

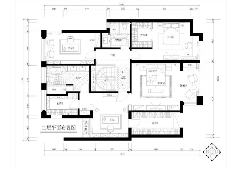
二层平面图

二顶层平面图
设计说明:本案例新古典主义在这些流行元素中,家具的创意造型仍是精髓所在,除去了古典主义过于繁复的装饰和眼花缭乱的金波装饰后造型简约的新古典主义家居的主调,越来越多的人选择了高贵、大气、稳重的欧式新古典主义风格家具。

门厅

客厅
主要用材,大理石,玻璃镜面,壁纸。整个空间以大面积的落地玻璃窗为主体,在窗边开辟一个阅读空间,一个沙发、一盏地灯,在墙角装点一束鲜花或是一盆绿色植物,营造出充满人性的亲和感。

餐厅

卧室

卧室
点击赞成林风咨询装修报价