办公室装修效果图设计说明:中式风格的特点是经典而优雅,中式风格并不缺乏中国风格的装饰,在中色,朱红、腮红、棕色等大量应用。也就是说,庄严的颜色占主导地位。设计得安静而优雅,这样的中国装饰会觉得很好看,因为每次看不同角度,感觉都不同,不同的人看到效果也不一样。

办公装修效果图
装修平面图

洽谈区装修效果图

宴会厅平面图

餐厅装修效果图

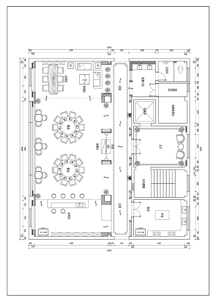
一楼平面图

品茶区装修效果图
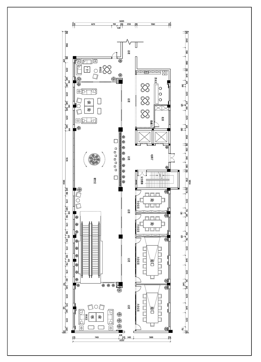
二楼平面图

宴会厅休闲区装修效果图

宴会厅玄关装修效果图

户型:
风格:新中式
面积:500㎡以上
城市:杭州
办公室装修效果图设计说明:中式风格的特点是经典而优雅,中式风格并不缺乏中国风格的装饰,在中色,朱红、腮红、棕色等大量应用。也就是说,庄严的颜色占主导地位。设计得安静而优雅,这样的中国装饰会觉得很好看,因为每次看不同角度,感觉都不同,不同的人看到效果也不一样。

办公装修效果图
装修平面图

洽谈区装修效果图

宴会厅平面图

餐厅装修效果图

一楼平面图

品茶区装修效果图
二楼平面图

宴会厅休闲区装修效果图

宴会厅玄关装修效果图
李丹 从业:15年 杨岚 从业:13年 设计师-久 从业:12年 戴一品 从业:20年 章依心 从业:10年 张洁 从业:23年 苏铭 从业:15年 冯莉佳 从业:15年 韩振伟 从业:10年 邵斐 从业:12年