◇ JiuDing · Home Design ◇


案例信息
案例地点:杭州 · 星海云庭
案例面积:200m2(跃层)
案例风格:北欧
主要用材:
地面// 地砖,大理石,强化地板;
墙面// 白色乳胶漆,硅藻泥;
暖通// 中央空调,分体空调,新风系统,净水处理,空气能;
家电// 家庭背景音乐系统,集成灶等
居住人口:夫妻+幼儿园女儿
设计师:黄丽
设计师回忆:女业主阿花花通过九鼎微信平台找到我。加了微信一段时间,后来初聊第一个问题就问我的年龄,婚否,是否有孩子,哈哈哈。后来得知女业主以前也是设计师,对结构改造和功能布局等都有较高的要求。简单舒适、自在温馨且接地气是她对家的最大要求,当然还有控制预算!
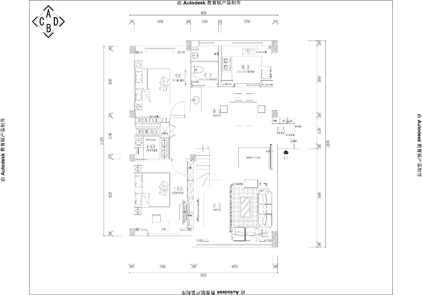
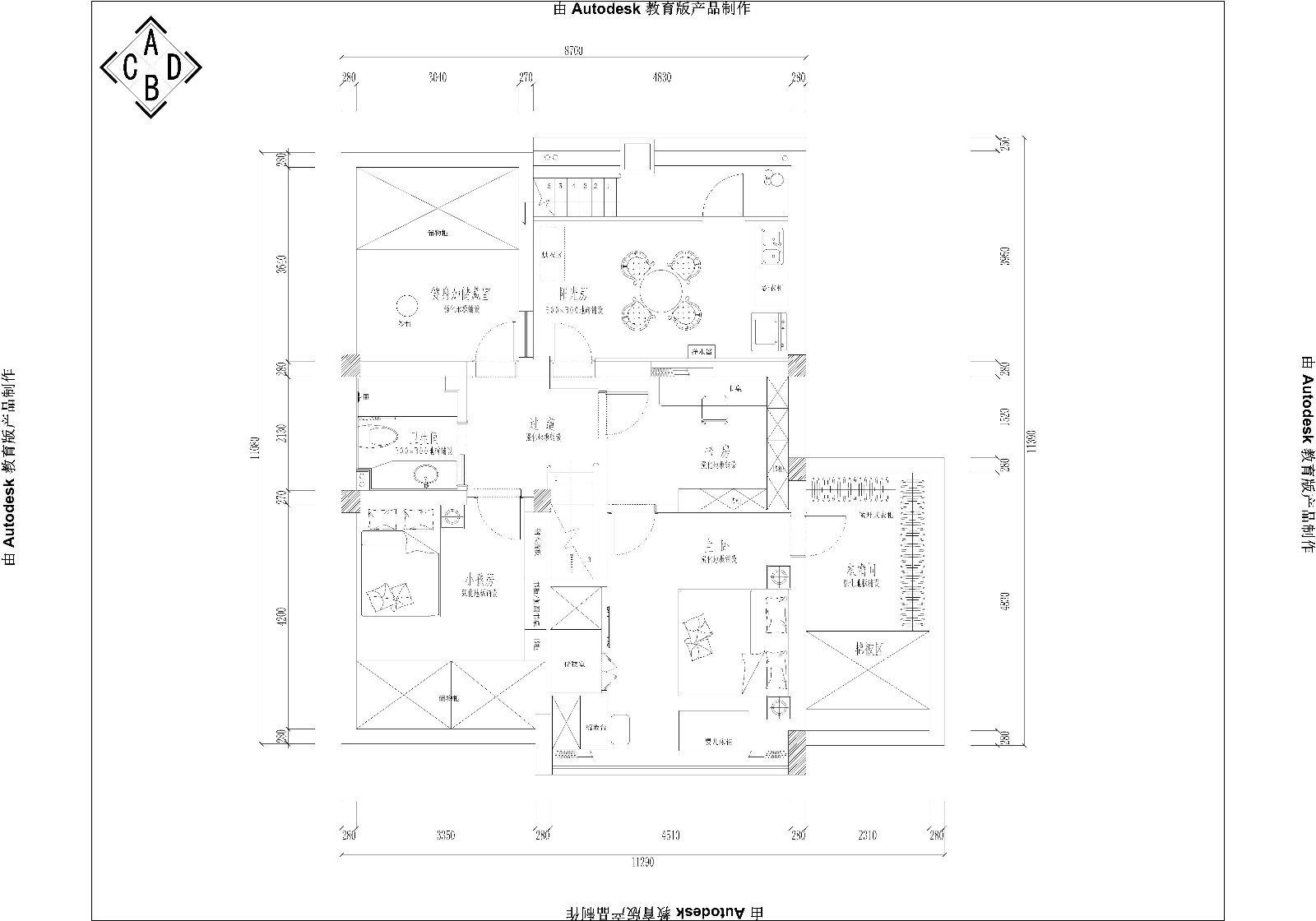
户型对比
▼改造前(点击查看大图)


F1
F2
▼改造后


F1
F2
#WARM HOUSE#


▲原来的样子
▲现在

▲入户 Into the house
简洁线条感的柜门,简单、实用的柜体给予家的整洁。
▼原来的样子

▼现在



▲客厅 Living room
空间整体简约、利落,明黄色皮质沙发,在微凉的秋日增添了一丝温暖。白色背景色与原木的搭配,舒适而自然。
灰色大理石纹路的地砖,将质感升层。(业主屡屡夸赞地砖选得好)
通往二楼的楼梯用原木与玻璃打造,加以黑色包边。既有延伸感又个性化。
▼原来的样子

▼现在

▼原来的样子

▼现在

▲餐厅 Dining room
装饰柜里的直饮水机是花花对家人的爱。厨房略做缩小改动,后期巧用吊顶结合顶梁。
借用过道公共区域作为餐厅,客厅与餐厅没有明显的隔断,将零散区域归集使得整个空间看起来宽敞明亮,让小朋友有足够的玩耍空间及亲子互动区。小朋友可以在这里练习舞蹈,妈妈也可练习瑜伽。


▲厨房 Kitchen
厨房是家温暖的延伸,家的味道由此开始。
采光良好的环境,给烹饪都带来愉悦。小面积厨房,利用大面积白色增大空间的视觉效果。
厨房采用玻璃移门,能让视觉有延伸感,并且还可以让耳朵有听觉盛宴。(餐厅、干区、客厅都有顶装音乐喇叭)(仔细观察会发现台面垃圾桶!各位小伙伴可以去脑补一下它的功能。都是业主花花生活品质的体现)
▼原来的样子

▼现在

▼原来的样子

▼现在



▲主卧 The master bedroom
主卧干净、清爽,落地纱帘既能弥补2.0层高的视觉缺陷,又使投射进来的阳光更加柔和。
花花最得意的就是床尾的功能布置:借用楼梯空间,让这里既满足一个储物间,又能实现梳妆台+电脑桌+储物柜多合一功能。
柜体都是木工用杉木集成板现场制作,既环保又节省预算。这个对于众多业主来说是最最关心的问题。
除这些之外,床头旁边门进去还有一个大大的衣帽间(储物空间充足,哈哈哈)
业主认证(聊天记录公开经业主同意)




▲女儿房(一楼) Daughter's room
孩子的成长速度很快,房间是女儿成长的小空间,既要灵活又要功能齐全,跟业主讨论之后,墙面选择了白色乳胶漆,将来想要更换装饰也很简单。
除了大大的书柜,还设置了钢琴区和玩耍空间。(舞蹈和音乐足以见妈妈的用心良苦,从小就培养女儿艺术细胞)
(设计师向来注重物品分类整理安放)所以建议取消了一楼一个卫生间做为储物间外加公共区域的储物柜。


▼原来的样子

▼现在

▲阁楼(二楼) The attic
老虎窗边框翻新套色,让光线更好的散发,保证了室内的明亮。与楼梯之间的隔墙采用了玻璃砖,同时满足楼梯间与卧室的既视感和光线感。
业主认证:

▲书房 Study
书房需要安静、敞亮的空间,静静工作与思考。不多用花里胡哨的色彩,百叶柔纱帘的色彩让书房光线更加柔和。
功能上给予书本充足的放置空间,还留了一块地方放置打印机。(这是花花根据自己和老公的使用习惯参与的布局)


▲卫生间 Toilet
此卫生间是个暗卫,以白色为主色,不至于太暗。
黑白花纹砖,清爽简单。
绿色图案的浴帘增添了一丝色彩,不使用的时候拉开,增大了空间视觉效果。

▲阳台 The balcony
不仅作为生活阳台,也像个小花园。
整个架空玻璃,透光又自然。
冬日在这晒晒太阳,真是再好不过。
由于篇幅有限,文中省略很多施工期间微信群的沟通聊天记录及图片,房屋户型及每一处的功能设计理念数不胜数。仅截取了业主对我们工作认可的部分微信聊天记录。(点击查看大图)

九鼎装饰带给您快乐的装修之旅,为您打造幸福的家,在此希望业主阿花花一家生活美满幸福! :)
love letter
完工的时候,业主给我们送来了感谢信。
我们感谢每一份信任、支持,
让每一位业主住好家,是我们的愿望与责任。

全国
杭州三台山400㎡中式装修案例
杭州平层150㎡古典现代装修案例
杭州之江一号137㎡现代极简装修案例
杭州御景蓝湾120㎡现代简约装修效果图
杭州唐家景府120㎡现代简约装修效果图
杭州杜湖名庭200㎡法式中古风装修案例效果图