柏悦府装修效果图
来源:九鼎装饰 浏览人数:87次 更新时间:2020-03-12 13:23:00
| 案例风格 | 欧式风格 | 案例户型 | 别墅 | 案例面积 | 700㎡ |
| 楼盘名称 | 柏悦府 | 所在城市 | 南京 | 装修价格 | 半包79万 主材260万 |
| 服务店面 | 南京九鼎装饰 | 设计师 | 徐劲松 | 业主评价 | ★★★★★ |
柏悦府装修效果图设计说明:设计师通过与业主的深入沟通,了解到他性格好爽大气,知识渊博,喜欢在家接待客人,再
结合该户型依山傍水,视野开阔,内部空间比较高敞的结构特点,决定以奢华大气的欧式风格为该别墅的设计基调.

柏悦府主卧装修效果图

柏悦府餐厅装修效果图

柏悦府地下室装修效果图

柏悦府地下室影视厅装修效果图

柏悦府中厅装修效果图

柏悦府客厅装修效果图

柏悦府门厅装修效果图

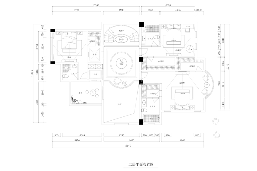
柏悦府二层平面布置图

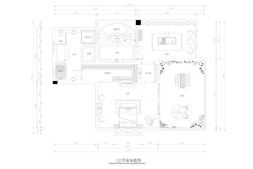
柏悦府三层平面布置图

柏悦府地下室平面布置图

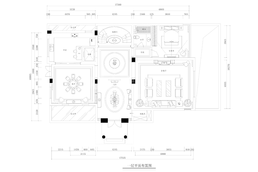
柏悦府一层平面布置图
已成功预约设计信息:
- 全bd 135……05
- 10.24 黄春平 138……15
- 10.24 许先生 136……62
- 杨先生 189……85
- 10.26 苟先生 133……90
- 10.28 苟bd 178……42
- 10.30 卫先生 131……95
- 11.02 陆 189……53
- 11.03 赵政 150……69
- 洪得珺 135……59
- 11.09 王生 182……80
- 11.14 苟天圣 187……60
- 11.14 方 182……35
- 11.17 朱bd 150……84
- 12.01 朱bd 150……84
- 11.21 刘 183……82
- 11.24 张先生 185……52
- 11.26 xia 187……51
- 11.30 王bd 150……79
- 12.01 周舟 135……16
|
|
上一篇:南京帝豪花园装修效果图
下一篇:锦绣兰庭装修案例












