许越设计效果图集
| 案例风格 | 欧式古典风格 | 案例户型 | loft | 案例面积 | **㎡ |
| 楼盘名称 |
个人设计图 |
所在城市 | 杭州 | 装修方式 | |
| 服务店面 | 九鼎装饰 | 设计师 | 许越 |
业主评价 |
★★★★★ |
许越设计效果图集装修案例设计说明:浪漫、华丽、高贵又有情调,是很多人喜欢欧式风格的原因,但如果一味追求造
型、死般硬套,也难免让家变的不中不洋。所以在选择欧式风格时,不但要考虑整体搭配和色彩效果,而且要注意造型的
选择,避免太繁琐和太简单。
龙湖滟澜山装修效果图
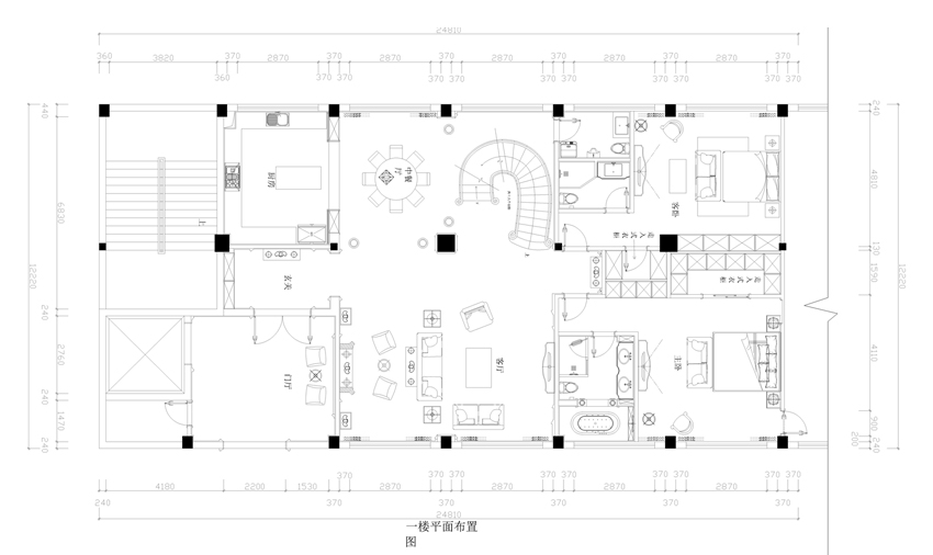
loft一楼装修设计图
loft二楼装修设计图
loft装修效果图
钱塘山水设计图
钱塘山水装修效果图
本案设计师简介
-

姓名:设计师-柒
电话:400-001-9900
查看ta其它案例
已成功预约设计信息:
- 全bd 135……05
- 10.24 黄春平 138……15
- 10.24 许先生 136……62
- 杨先生 189……85
- 10.26 苟先生 133……90
- 10.28 苟bd 178……42
- 10.30 卫先生 131……95
- 11.02 陆 189……53
- 11.03 赵政 150……69
- 洪得珺 135……59
- 11.09 王生 182……80
- 11.14 苟天圣 187……60
- 11.14 方 182……35
- 11.17 朱bd 150……84
- 12.01 朱bd 150……84
- 11.21 刘 183……82
- 11.24 张先生 185……52
- 11.26 xia 187……51
- 11.30 王bd 150……79
- 12.01 周舟 135……16
|
|










