赞成檀府装修案例
来源:九鼎装饰 浏览人数:265次 更新时间:2018-05-23 15:53:00
| 案例风格 | 新古典 | 案例户型 | loft | 案例面积 | 260㎡ |
| 楼盘名称 | 赞成檀府 | 所在城市 | 杭州余杭 | 案例造价 | 130万 |
| 服务店面 | 临平九鼎装饰 | 设计师 | 王雁 | 业主评价 | ★★★★★ |
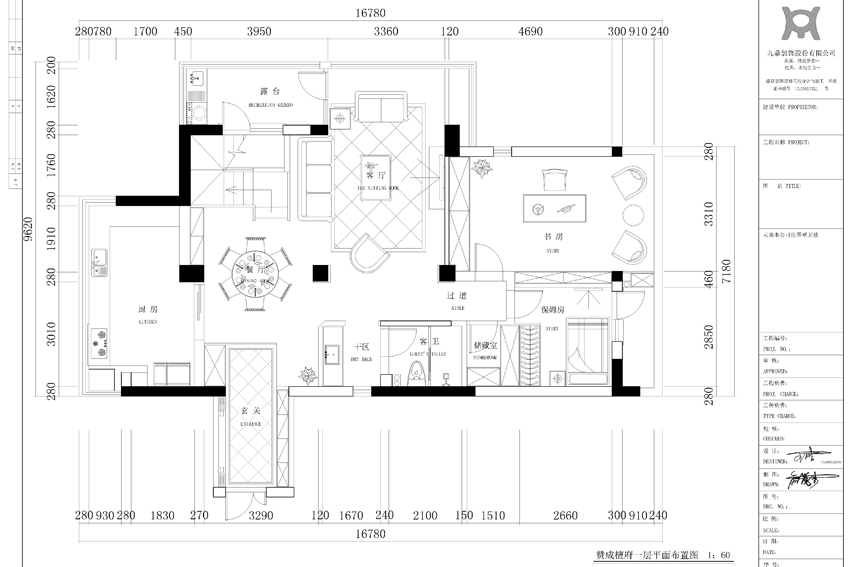
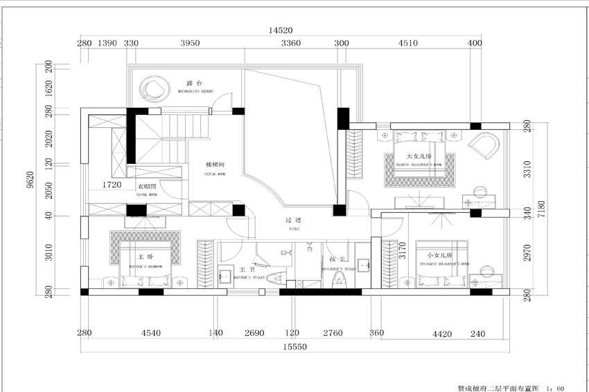
赞成檀府装修案例说明:此案原建筑为一套三室两厅LOFT户型,通过平面改造装修完工后为一套豪华空中别墅,很好的
满足了一家五口各方面的居住需求。本案以白色为基调,搭配石材、实木护墙、华丽多彩的织物、多姿曲线的家具等,
让室内呈现豪华富丽的效果。

客厅效果图

客厅实景图

餐厅效果图

餐厅实景图

大女儿房间效果图

二楼主卧效果图

楼图

卧室沙发

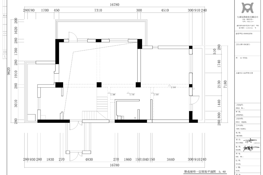
赞成檀府一楼原始图

赞成檀府一楼布置图

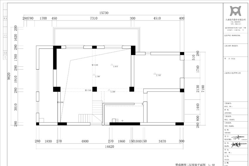
赞成檀府二楼原始图

赞成檀府二楼布置图
已成功预约设计信息:
- 全bd 135……05
- 10.24 黄春平 138……15
- 10.24 许先生 136……62
- 杨先生 189……85
- 10.26 苟先生 133……90
- 10.28 苟bd 178……42
- 10.30 卫先生 131……95
- 11.02 陆 189……53
- 11.03 赵政 150……69
- 洪得珺 135……59
- 11.09 王生 182……80
- 11.14 苟天圣 187……60
- 11.14 方 182……35
- 11.17 朱bd 150……84
- 12.01 朱bd 150……84
- 11.21 刘 183……82
- 11.24 张先生 185……52
- 11.26 xia 187……51
- 11.30 王bd 150……79
- 12.01 周舟 135……16
|
|











