西溪玫瑰园装修案例
来源:九鼎装饰 浏览人数:374次 更新时间:2018-05-10 14:31:00
| 案例风格 | 美式 | 案例户型 | 别墅 | 案例面积 | 320㎡ |
| 楼盘名称 | 西溪玫瑰园 | 所在城市 | 浙江杭州 | 案例造价 | |
| 服务店面 | 城北九鼎装饰 | 设计师 | 朱术进 | 业主评价 | ★★★★★ |
西溪玫瑰园装修案例设计理念:主题空间 :积厚成器,木以载道。空间,因家居的存在而不在寂寥,在传统文化上,家居的繁生总
是与家有着极其紧密的关系,一处空间,之所以能具有家的生活意味,是由于坐卧,凭依,书藏,间隔,喜好,等功能之中衍生,人之所以
得以在此修养安息。生活当然也要则良品伴居,正是两者之间形影相随,为空间设计与美式家具艺术搭配建立一个生活起居的理想家园。

餐厅

客厅

卧室

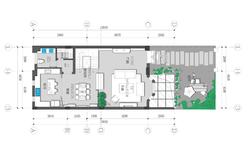
一楼平面图

地下室平面图

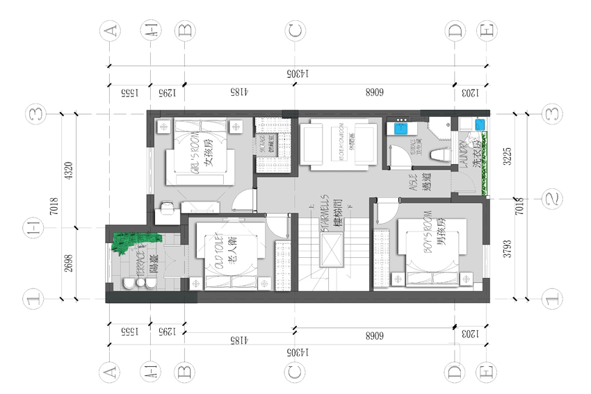
二楼平面图

四楼平面图

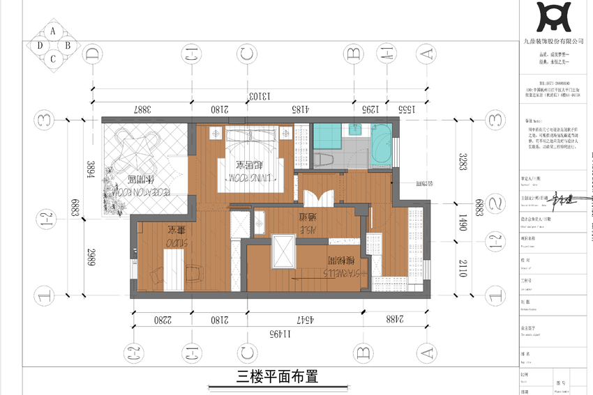
三楼平面图
已成功预约设计信息:
- 全bd 135……05
- 10.24 黄春平 138……15
- 10.24 许先生 136……62
- 杨先生 189……85
- 10.26 苟先生 133……90
- 10.28 苟bd 178……42
- 10.30 卫先生 131……95
- 11.02 陆 189……53
- 11.03 赵政 150……69
- 洪得珺 135……59
- 11.09 王生 182……80
- 11.14 苟天圣 187……60
- 11.14 方 182……35
- 11.17 朱bd 150……84
- 12.01 朱bd 150……84
- 11.21 刘 183……82
- 11.24 张先生 185……52
- 11.26 xia 187……51
- 11.30 王bd 150……79
- 12.01 周舟 135……16
|
|












